Пн-пт с 09:00 до 21:00, Сб-вс с 11:00 до 18:00

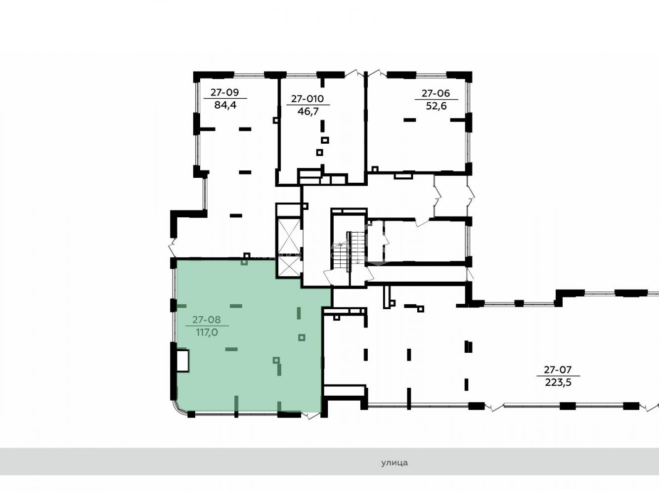
Снять Торговое помещение 117 м² Скандинавский б-р,

263 500 / 2 252/м²

Описание

Предложение напрямую от застройщика!

ХАРАКТЕРИСТИКИ ПОМЕЩЕНИЯ
Стоимость аренды в мес.: 263 500 рублей
Стоимость аренды за м2/мес.: 2 252 рублей
Площадь: 117,0 м2
Назначение: свободное назначение
Отделка: нет
Потолки: 4,7 м
Разрешенная мощность: 23,4 кВт
Система вентиляции: Ш200;Ш100
Количество входов: 1
Количество этажей в помещении: 1
Витринное остекление: нет
Проходимость: от 70 до 201 чел./час (*прогноз по данным «Геоаналитика BestPlace»)





ЖК «Скандинавия» - Более 60 000 человек численность населения. Первая и вторая очереди проекта заселены в 2019 году.
ЖК «Скандинавия» строится на границе Бутовского лесопарка в экологически благоприятной юго-западной части Москвы — для тех, кто выбирает для себя и своей семьи комфорт мегаполиса, но жить предпочитает в окружении природы. Главная идея — баланс жилья и сервисов, транспортной доступности и комфортной удалённости от трасс, шумных зон для активных видов отдыха и уютных зелёных островков для созерцания и релаксации. 5 детских садов и 1 школа открыты. Квартиры с планировки для семей. Бутовский лесопарк 1610 га. 6 детских садов и 3 школы проектируются и строятся. 100 га городских и парковых пространств.
Арендуя помещение, вы можете воспользоваться интерактивным подбором помещений, выбрать помещение с акцептом франшизы. Мы создали платформу «А101 Бизнес» с учётом потребностей владельцев бизнесов, инвесторов и сформировали предложения для каждой группы покупателей, арендодателей и арендаторов.


ЖИЛОЙ КОМПЛЕКС РАСПОЛОЖЕН
Ст. метро «Новомосковская» (2023г.) 700м, ст. метро «Коммунарка» 2 км, ст. метро «Тёплый Стан» 7 км, ст. метро «Бунинская аллея» 5,5 км, МКАД 6,5 км, Калужское шоссе 2,9 км.

Инфраструктура района

Похожие объекты в этом районе

Торговое помещение 75.8 м²

Сосенское, квартал 26

204 660

Торговое помещение 59.2 м²

Сосенское, улица Куприна

205 800

Торговое помещение 80.1 м²

Сосенское, улица Александры Монаховой

210 000

Мы используем файлы cookie, чтобы обеспечить вам наилучший доступ к нашему веб-сайту