Пн-пт с 09:00 до 21:00, Сб-вс с 11:00 до 18:00

Снять Торговое помещение 84.3 м² Скандинавский б-р,

139 797 / 1 658/м²

Описание

Предложение напрямую от застройщика!

ХАРАКТЕРИСТИКИ ПОМЕЩЕНИЯ
Стоимость аренды в мес.: 139 797 рублей
Стоимость аренды за м2/мес.: 1 658 рублей
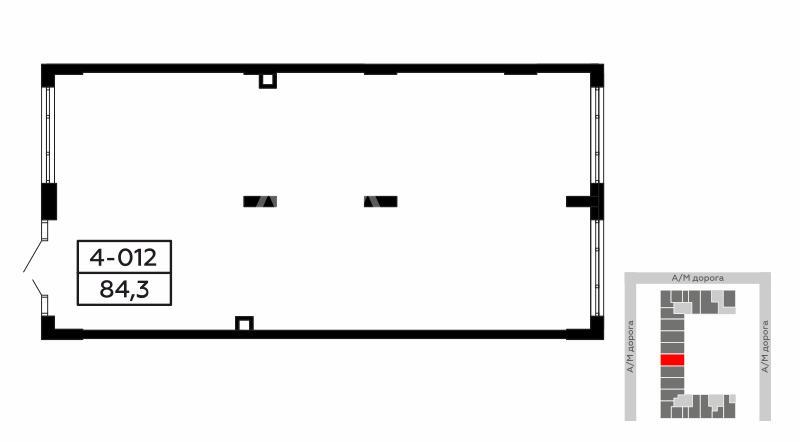
Площадь: 84,3 м2
Назначение: свободное назначение
Отделка: нет
Потолки: 0,0 м
Разрешенная мощность: 12,7 кВт
Система вентиляции: Ø100, Ø160
Количество входов: 1
Количество этажей в помещении: 1
Витринное остекление: нет
Проходимость: от 60 до 171 чел./час (*прогноз по данным «Геоаналитика BestPlace»)





ЖК «Скандинавия» - Более 60 000 человек численность населения. Первая и вторая очереди проекта заселены в 2019 году.
ЖК «Скандинавия» строится на границе Бутовского лесопарка в экологически благоприятной юго-западной части Москвы — для тех, кто выбирает для себя и своей семьи комфорт мегаполиса, но жить предпочитает в окружении природы. Главная идея — баланс жилья и сервисов, транспортной доступности и комфортной удалённости от трасс, шумных зон для активных видов отдыха и уютных зелёных островков для созерцания и релаксации. 5 детских садов и 1 школа открыты. Квартиры с планировки для семей. Бутовский лесопарк 1610 га. 6 детских садов и 3 школы проектируются и строятся. 100 га городских и парковых пространств.
Арендуя помещение, вы можете воспользоваться интерактивным подбором помещений, выбрать помещение с акцептом франшизы. Мы создали платформу «А101 Бизнес» с учётом потребностей владельцев бизнесов, инвесторов и сформировали предложения для каждой группы покупателей, арендодателей и арендаторов.


ЖИЛОЙ КОМПЛЕКС РАСПОЛОЖЕН
Ст. метро «Новомосковская» (2023г.) 700м, ст. метро «Коммунарка» 2 км, ст. метро «Тёплый Стан» 7 км, ст. метро «Бунинская аллея» 5,5 км, МКАД 6,5 км, Калужское шоссе 2,9 км.

Инфраструктура района

Похожие объекты в этом районе

Торговое помещение 84.3 м²

Сосенское, бульвар Скандинавский

141 203

Торговое помещение 45 м²

Сосенское, квартал 26

150 000

Торговое помещение 83.9 м²

Сосенское, бульвар Скандинавский

139 134

Мы используем файлы cookie, чтобы обеспечить вам наилучший доступ к нашему веб-сайту