Пн-пт с 09:00 до 21:00, Сб-вс с 11:00 до 18:00

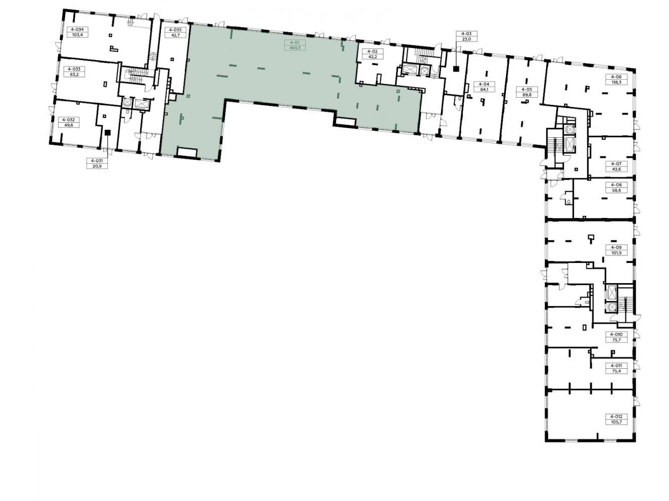
Снять Торговое помещение 469.3 м² ул Мостовая,

1 249 999 / 2 663/м²

  • Тип недвижимости Коммерческая
  • Населенный пункт Десёновское
  • Адрес улица Мостовая
  • Стоимость заМесяц
  • Общая площадь 469.3 м²
  • Вид объекта Торговое помещение
  • Этаж 1
  • Этажность дома 15
  • Отопление Да
  • Жилой комплекс Деснаречье
  • Корпус ЖК 3641368

Описание

Предложение напрямую от застройщика!

ХАРАКТЕРИСТИКИ ПОМЕЩЕНИЯ
Стоимость аренды в мес.: 1 249 999 рублей
Стоимость аренды за м2/мес.: 2 664 рублей
Площадь: 469,3 м2
Назначение: свободное назначение
Отделка: нет
Потолки: 4,8 м
Разрешенная мощность: 140,85 кВт
Система вентиляции: 550х400; 650х400; 350х250; Ø125
Количество входов: 2
Количество этажей в помещении: 1
Витринное остекление: нет
Проходимость: от 126 до 354 чел./час (*прогноз по данным «Геоаналитика BestPlace»)






Арендуя помещение, вы можете воспользоваться интерактивным подбором помещений, выбрать помещение с акцептом франшизы. Мы создали платформу «А101 Бизнес» с учётом потребностей владельцев бизнесов, инвесторов и сформировали предложения для каждой группы покупателей, арендодателей и арендаторов.

Инфраструктура района

Мы используем файлы cookie, чтобы обеспечить вам наилучший доступ к нашему веб-сайту