Пн-пт с 09:00 до 21:00, Сб-вс с 11:00 до 18:00

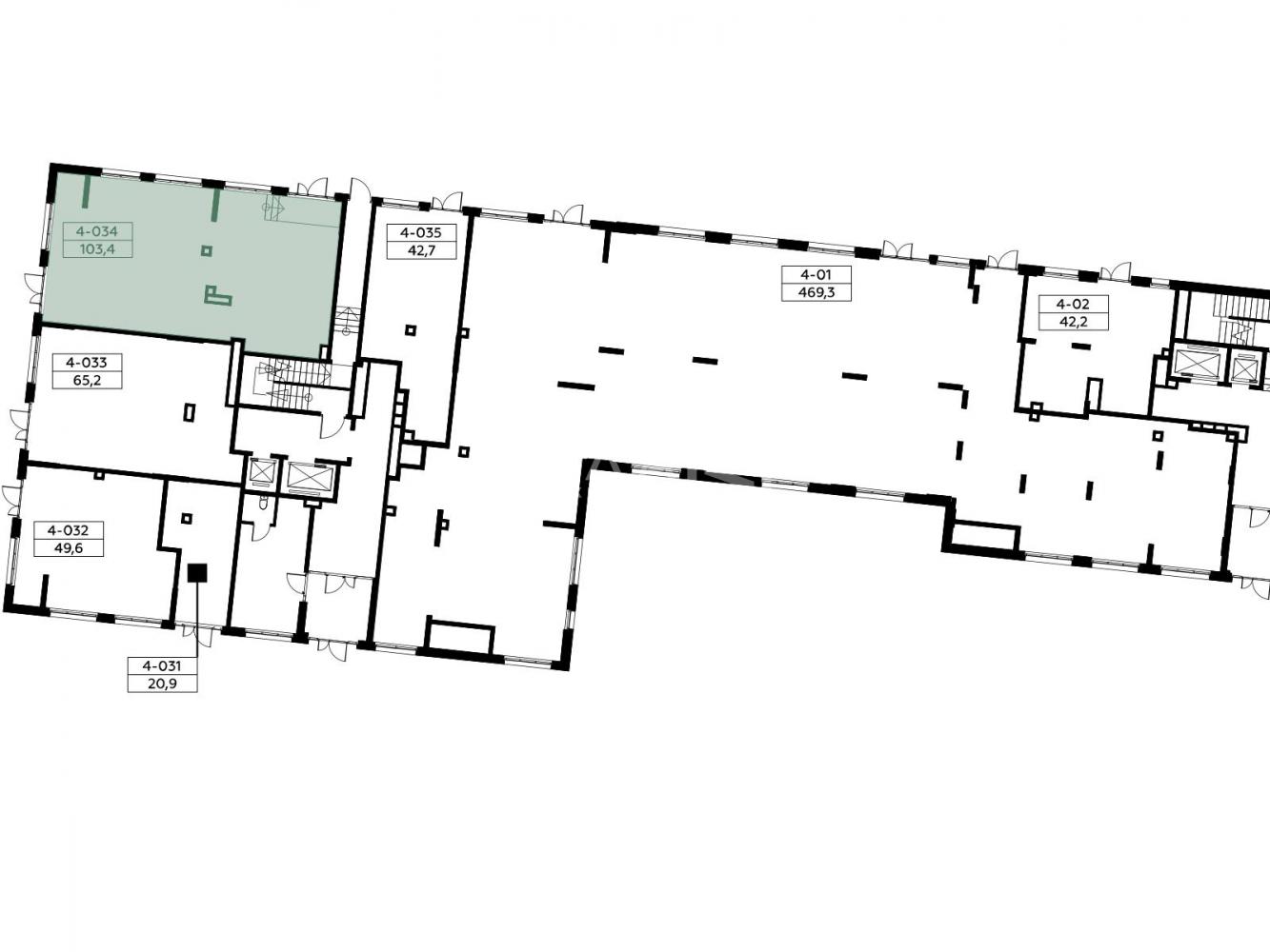
Снять Торговое помещение 103.4 м² ул Мостовая,

260 000 / 2 514/м²

  • Тип недвижимости Коммерческая
  • Населенный пункт Десёновское
  • Адрес улица Мостовая
  • Стоимость заМесяц
  • Общая площадь 103.4 м²
  • Вид объекта Торговое помещение
  • Этаж 1
  • Этажность дома 15
  • Отопление Да
  • Жилой комплекс Деснаречье
  • Корпус ЖК 3641725

Описание

Предложение напрямую от застройщика!

ХАРАКТЕРИСТИКИ ПОМЕЩЕНИЯ
Стоимость аренды в мес.: 260 000 рублей
Стоимость аренды за м2/мес.: 2 515 рублей
Площадь: 103,4 м2
Назначение: свободное назначение
Отделка: нет
Потолки: 5,4 м
Разрешенная мощность: 31,02 кВт
Система вентиляции: 200х200; 400х350; Ø100
Количество входов: 2
Количество этажей в помещении: 1
Витринное остекление: нет






Арендуя помещение, вы можете воспользоваться интерактивным подбором помещений, выбрать помещение с акцептом франшизы. Мы создали платформу «А101 Бизнес» с учётом потребностей владельцев бизнесов, инвесторов и сформировали предложения для каждой группы покупателей, арендодателей и арендаторов.

Инфраструктура района

Похожие объекты в этом районе

Торговое помещение 114.6 м²

Десёновское, улица Мостовая

265 000

Торговое помещение 86.2 м²

Десёновское, улица Мостовая

242 000

Торговое помещение 84.1 м²

Десёновское, улица Мостовая

195 000

Мы используем файлы cookie, чтобы обеспечить вам наилучший доступ к нашему веб-сайту