Пн-пт с 09:00 до 21:00, Сб-вс с 11:00 до 18:00

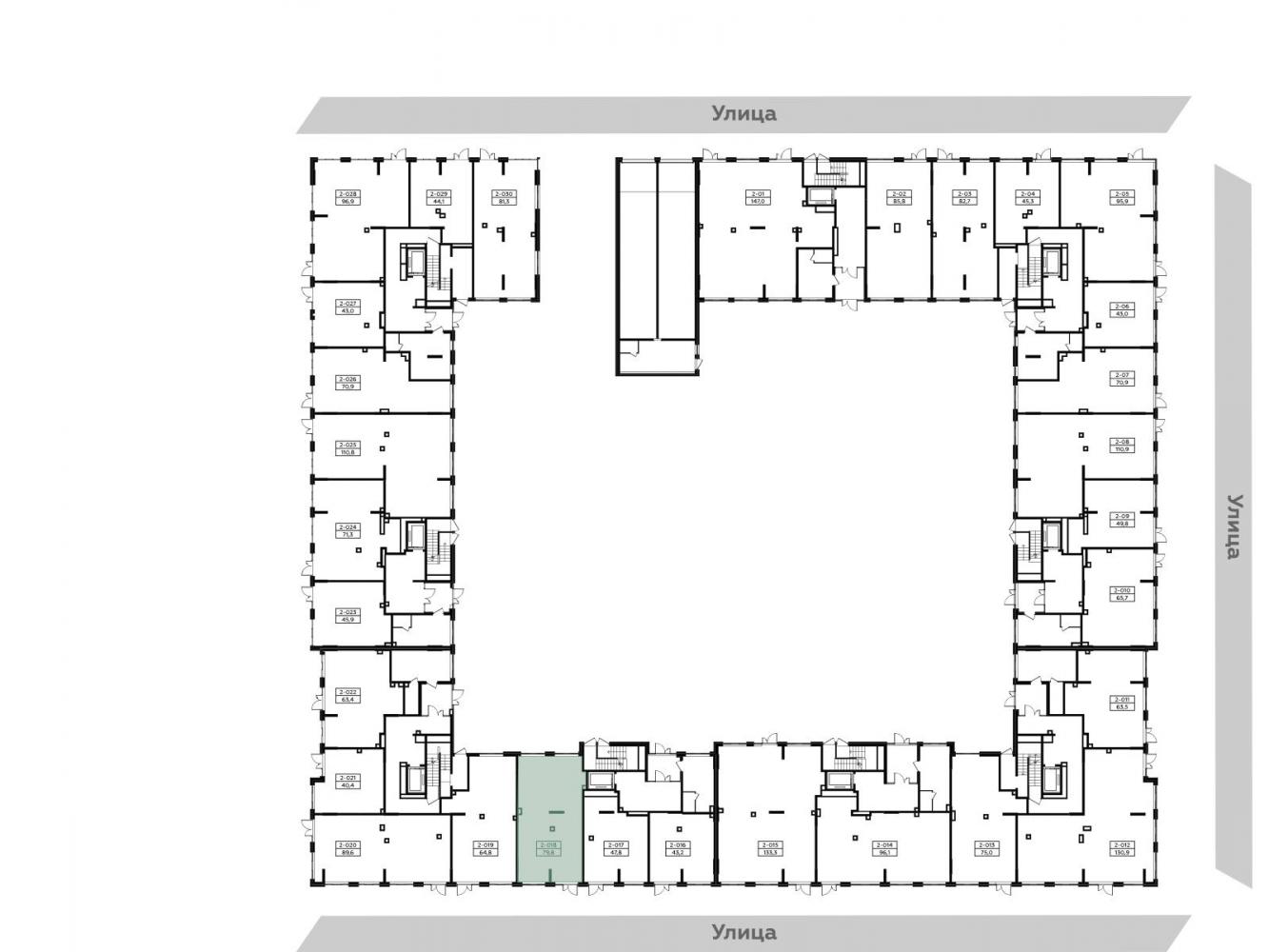
Снять Торговое помещение 79.8 м² Киевское шоссе, 32-й км, д 1

200 000 / 2 506/м²

  • Тип недвижимости Коммерческая
  • Населенный пункт Марушкинское
  • Район Новомосковский
  • Микрорайон Киевское
  • Адрес километр 32-й, д.1
  • Стоимость заМесяц
  • Общая площадь 79.8 м²
  • Вид объекта Торговое помещение
  • Этаж 1
  • Этажность дома 9
  • Отопление Да
  • Жилой комплекс Родные кварталы
  • Корпус ЖК 3736062

Описание

Предложение напрямую от застройщика!

ХАРАКТЕРИСТИКИ ПОМЕЩЕНИЯ
Стоимость аренды в мес.: 200 000 рублей
Стоимость аренды за м2/мес.: 2 506 рублей
Площадь: 79,8 м2
Назначение: свободное назначение
Отделка: нет
Потолки: 5,11 м
Разрешенная мощность: 15,96 кВт
Система вентиляции: 150х150; Ø125
Количество входов: 0
Количество этажей в помещении: 0
Витринное остекление: нет
Проходимость: от 129 до 463 чел./час (*прогноз по данным «Геоаналитика BestPlace»)






Арендуя помещение, вы можете воспользоваться интерактивным подбором помещений, выбрать помещение с акцептом франшизы. Мы создали платформу «А101 Бизнес» с учётом потребностей владельцев бизнесов, инвесторов и сформировали предложения для каждой группы покупателей, арендодателей и арендаторов.

Инфраструктура района

Мы используем файлы cookie, чтобы обеспечить вам наилучший доступ к нашему веб-сайту