Пн-пт с 09:00 до 21:00, Сб-вс с 11:00 до 18:00

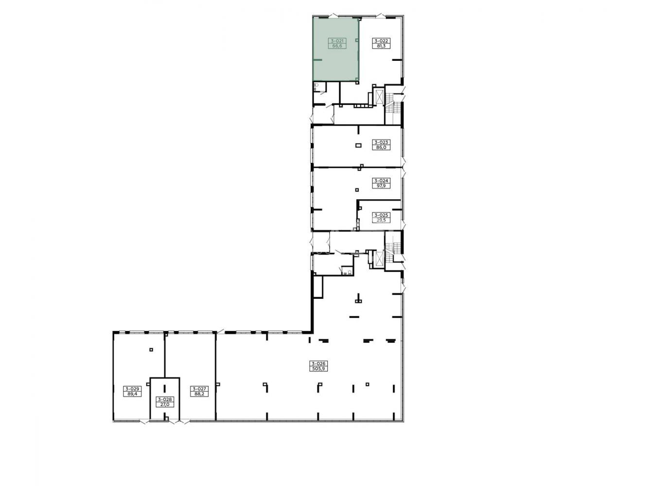
Снять Торговое помещение 66.4 м² ул Куприна,

180 000 / 2 710/м²

Описание

Предложение напрямую от застройщика!

ХАРАКТЕРИСТИКИ ПОМЕЩЕНИЯ
Стоимость аренды в мес.: 180 000 рублей
Стоимость аренды за м2/мес.: 2 711 рублей
Площадь: 66,4 м2
Назначение: свободное назначение
Отделка: нет
Потолки: 4,56 м
Разрешенная мощность: 13,32 кВт
Система вентиляции: Ш100; 200x100
Количество входов: 1
Количество этажей в помещении: 1
Витринное остекление: нет
Проходимость: от 17 до 77 чел./час (*прогноз по данным «Геоаналитика BestPlace»)






Арендуя помещение, вы можете воспользоваться интерактивным подбором помещений, выбрать помещение с акцептом франшизы. Мы создали платформу «А101 Бизнес» с учётом потребностей владельцев бизнесов, инвесторов и сформировали предложения для каждой группы покупателей, арендодателей и арендаторов.

Инфраструктура района

Похожие объекты в этом районе

Торговое помещение 41.9 м²

Сосенское, квартал 26

165 000

Торговое помещение 63.2 м²

Сосенское, квартал 26

170 000

Торговое помещение 83.9 м²

Сосенское, бульвар Скандинавский

139 134

Мы используем файлы cookie, чтобы обеспечить вам наилучший доступ к нашему веб-сайту