Пн-пт с 09:00 до 21:00, Сб-вс с 11:00 до 18:00

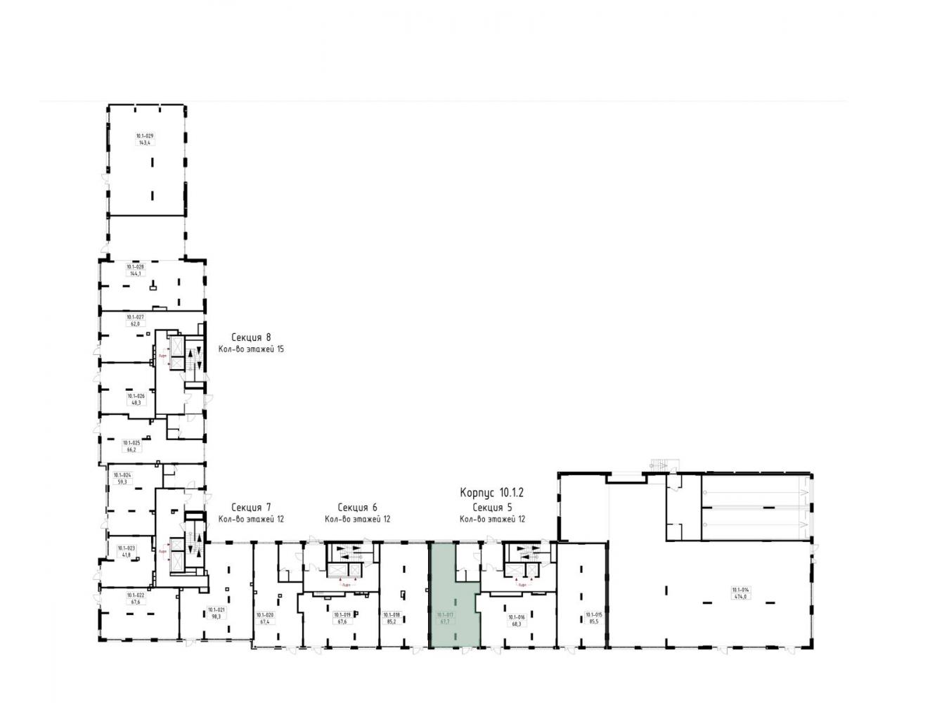
Снять Торговое помещение 67.7 м² кв-л 26,

223 410 / 3 300/м²

  • Тип недвижимости Коммерческая
  • Населенный пункт Сосенское
  • Адрес квартал 26
  • Стоимость заМесяц
  • Общая площадь 67.7 м²
  • Вид объекта Торговое помещение
  • Этаж 1
  • Этажность дома 15
  • Отопление Да
  • Жилой комплекс ЖК «Прокшино»
  • Корпус ЖК Корпус 5.2.2

Описание

Предложение напрямую от застройщика!

ХАРАКТЕРИСТИКИ ПОМЕЩЕНИЯ
Стоимость аренды в мес.: 223 410 рублей
Стоимость аренды за м2/мес.: 3 300 рублей
Площадь: 67,7 м2
Назначение: свободное назначение
Отделка: нет
Потолки: 5,05 м
Разрешенная мощность: 13,55 кВт
Система вентиляции: Ш160; Ш100
Количество входов: 1
Количество этажей в помещении: 1
Витринное остекление: нет
Проходимость: от 34 до 77 чел./час (*прогноз по данным «Геоаналитика BestPlace»)





Жилой район «Прокшино» расположен в юго-западной части Москвы в 7 км от МКАД и 500 м от одноимённой станции метро.
Рядом домами будут построены крупный торгово-офисный центр и всесезонный спортивно-развлекательный комплекс. Все три объекта, включая жилой район, войдут в состав масштабного кластера Прокшино. В районе «Прокшино», где поселятся 35 тыс. жителей, вся инфраструктура для работы и отдыха находится рядом с домом.
Появятся объекты с заложенной в проекте конкретной функцией: детский сад на 100 мест, ФОК с двумя бассейнами, супермаркет и другие. Вывески и витрины будут хорошо видны со стороны оживлённой трассы СБВ.
Помещения для бизнеса представлены в разных форматах – от 25 м2 до 2 тыс. м2. Высота потолков от 4 м до 6,35 м. Предусмотрена свободная планировка и возможность объединения с соседними лотами. Характеристики помещений позволяют реализовать любой бизнес-проект.
Площадь от 25 м2 до 2000 м2 и более. 55% лотов площадью до 100 м2. Возможность организации антресоли.
Арендуя помещение, вы можете воспользоваться интерактивным подбором помещений, выбрать помещение с акцептом франшизы. Мы создали платформу «А101 Бизнес» с учётом потребностей владельцев бизнесов, инвесторов и сформировали предложения для каждой группы покупателей, арендодателей и арендаторов.


ЖИЛОЙ КОМПЛЕКС РАСПОЛОЖЕН
500 м до метро «Прокшино», Калужское шоссе 3 км, выезд на СБВ 100 м, Киевское шоссе 3 км, МКАД 7,6 км.

Инфраструктура района

Похожие объекты в этом районе

Торговое помещение 117 м²

Сосенское, бульвар Скандинавский

263 500

Торговое помещение 90.6 м²

Сосенское, бульвар Скандинавский

217 440

Торговое помещение 69.8 м²

Сосенское, квартал 26

244 300

Мы используем файлы cookie, чтобы обеспечить вам наилучший доступ к нашему веб-сайту